産品(pǐn)詳情

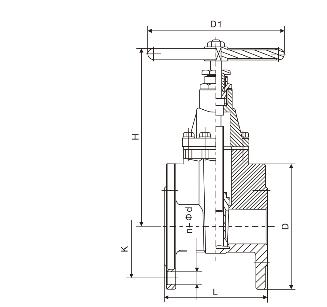
黃銅法(fǎ)蘭閘閥(fá)(圖1)



主要(yao)外形連(lian)接尺寸(cun)

DN(mm)

NPS(in)

H

D

K

n-Φd

1/2

81

78

65

58

4-14

20

3/4

90

87

105

75

58

4-14

25

1

115

85

71

4-14

32

11 / 4

120

140

100

78

4-18

40

11 / 2

119

125

150

110

97

4-18

2

140

155

125

107

4-18

65

21 / 2

172

180

145

4-18

80

158

196

195

160

175

8-18

100

4

245

215

193

8-18